エクセラート平野A棟 110号室
使い勝手の良い2WAYキッチンで家事動線スムーズ。専用庭付きで戸建て感覚の暮らし。ペット飼育OK!
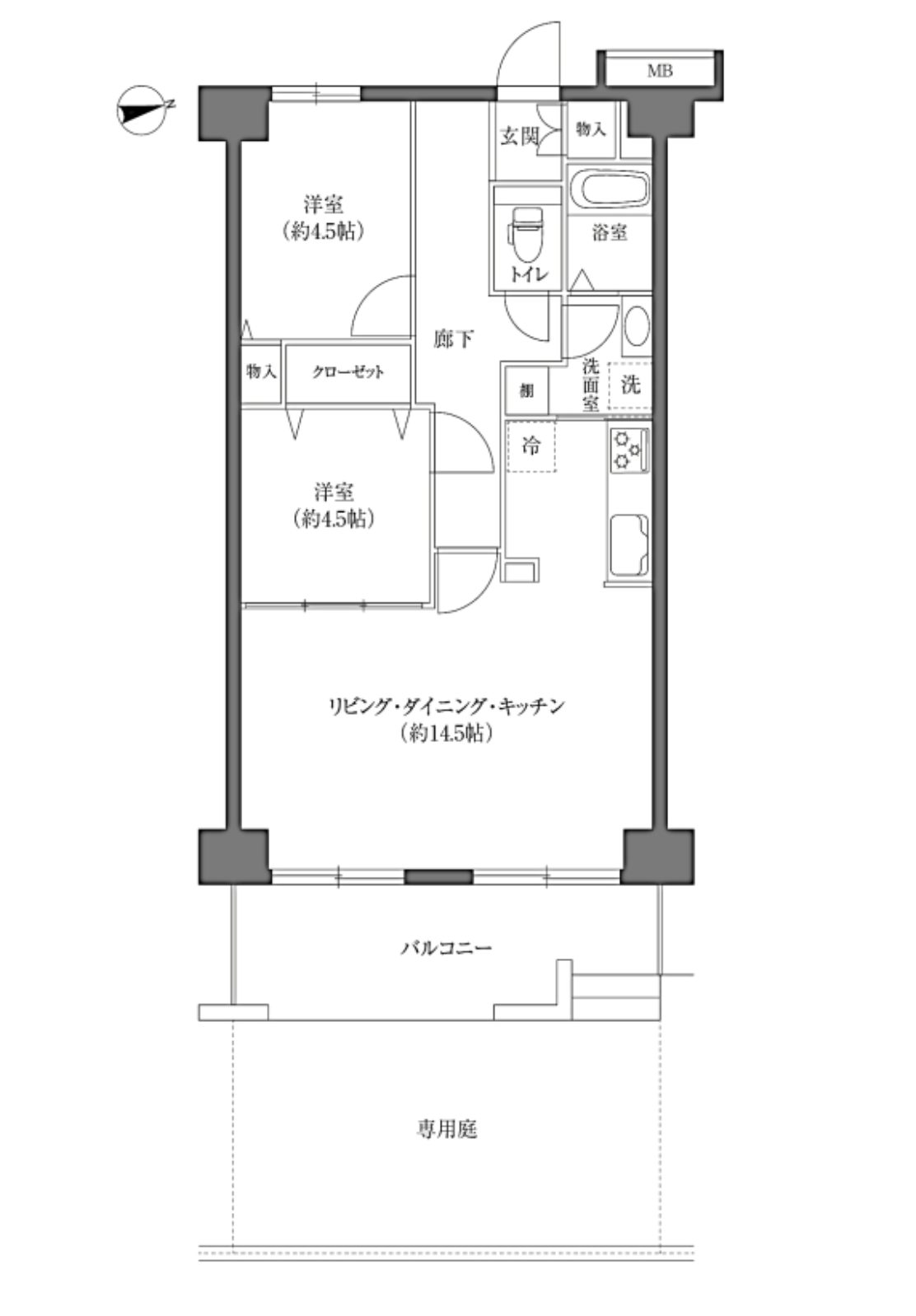
間取り
360°コンテンツ
専有部
リノベーション内容
2025年3月 内装リノベーション完了
LIXIL製 システムキッチン交換(食洗機付)/LIXIL製 UB・トイレ・洗面化粧台交換/全室天井・壁クロス張替(★エコカラットタイル一部使用)/全室フローリング張替/Panasonic製 建具・収納新調/照明器具新調
物件特徴・設備
- ペット飼育可
- 2駅利用可能
- ガスコンロ三口
- 食器洗浄乾燥機
- 全室フローリング
- 追い焚き機能
- 駅徒歩10分以内
- スーパー徒歩10分以内
- 小学校徒歩10分以内
- 専用庭
アクセス
〒547-0005
大阪府大阪市平野区加美西2丁目7-1
JR関西本線「加美」駅 徒歩8分
JRおおさか東線「新加美」駅 徒歩10分
【周辺環境】
大阪市立加美南中学校 徒歩約22分
大阪市立加美南部小学校 徒歩約8分
平野愛和第二学園 徒歩約5分
スーパーサンエー 平野店 徒歩約10分
ファミリーマート イル・サローネ平野/S店 徒歩約3分
平野東図書館前病院 徒歩約8分
久宝寺緑地 徒歩約20分
物件詳細
- 郵便番号
- 〒547-0005
- 所在地
- 大阪府大阪市平野区加美西2丁目7-1
- 用途地域
- 準工業地域
- 土地権利
- 所有権(敷地権)
- 間取り
- 2LDK
- 専有面積
- 60.72㎡
- バルコニー面積
- バルコニー 9.69㎡・専用庭 19.31㎡
- 築年月
- 1986年1月
- 総戸数
- 147戸
- 構造・規模
- 鉄骨鉄筋コンクリート造(SRC)11階建て/1階部分
- 取引態様
- 売主
- 管理会社
- (株)長谷コミュニティ
- 管理形態
- 全部委託・日勤・月〜土
- 管理費
- 6,295円/月
- 修繕積立費
- 12,750/月
- その他情報
- 専用庭使用料:580円/月
町内費:200円/月
駐車場使用料:580円/月
駐輪場使用料:200円/月
バイク置場使用料:1,000円/月
ミニバイク置場使用料:500円/月
ペット飼育:可(規定有)
テレビ視聴:J:COM
インターネット:NTT、Bフレッツ、U-SEN、J:COM
※図面と現況とが相違する場合は現況を優先とします。




